Op het terrein van machinefabriek Köppern is in samenspraak tussen de opdrachtgever Vastbau Düsseldorf GmbH, de Stadt Hattingen en ons bureau een stedenbouwkundig plan ontwikkeld, dat eind 2002 als bestemmingsplan is vastgesteld. Na sloop van de fabriek en aanleg van de ontsluiting zijn in de periode 2004 t/m 2010 in totaal 30 tweekappers en 16 rijenwoningen gerealiseerd, alsmede een complex met 35 appartementen. Voor de laatste fase is begin 2011 besloten, het oorspronkelijk concept met 15 terrassenbungalows en 6 tweekappers grondig te herzien.

Dit plandeel met een hoogteverschil van ca. 18 m over een lengte van 63 m is bij uitstek geschikt voor woonvormen, die optimaal zijn georiënteerd op het unieke uitzicht van de Ruhrvallei. De nokhoogte van de tweekappers volgens bestemmingsplan vormt daarbij een grote belemmering. Ons voorstel hier vrijstaande woningen in twee bouwlagen te projecteren, neemt dat bezwaar weg: bij alle woningen is sprake van vrij uitzicht.
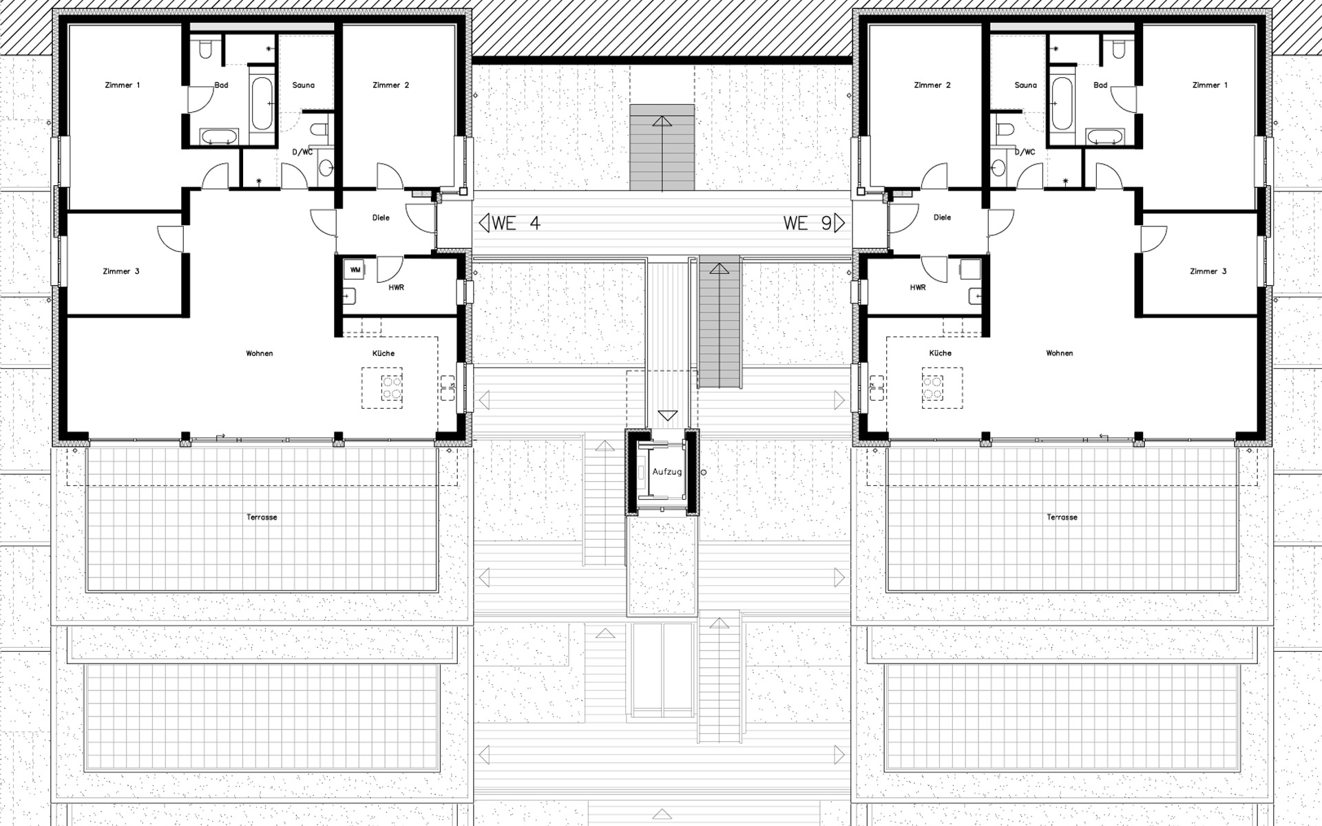
De terrassenwoningen zijn t.o.v. het oude concept op diverse andere punten sterk verbeterd:
– per lift bereikbare, rolstoelgeschikte appartementen (140 á 160 m²)
– riante privé dakterrassen met optimale bezonning (35 á 50 m²)
– ruimte voor individuele woonwensen door grote keuzevrijheid
– verbeterde verhouding tussen netto woonoppervlak en inhoud
– licht, lucht en privacy door het aantal woningen tot 10 te beperken
– goede energieprestatie door inzet van diverse besparende technieken
– architectuur met een moderne uitstraling
Het resultaat van de herziening is een inventief in het landschap geïntegreerd ontwerp, waar de bewoners exclusief en comfortabel kunnen wonen.
datum: mei 2014
fase: uitvoering
projectomschrijving: In een helling geïntegreerde woonvorm met uitzicht op het beschermde landschap van de Ruhrvallei.
projectadres: Dahlhauser Strasse / Ruhrbogen, Ruhrbogen / Königsteiner Strasse
opdrachtgever: Vastbau Düsseldorf GmbH
aannemer: Vastbau Gronau GmbH
adviseur constructie: Ing.-Büro für Baustatik Klaus Rensinghoff
adviseur installatie: Ing.-Büro Ludger Terbrack
fotografie: / visualisatie: Engel & Haehnel












