Mark Janssen, Volkshuisvesting:
“Het project is geslaagd omdat we gezamenlijk (in bouwteam) hebben gekeken naar functionele zaken met respect voor de architectuur en het monument. We zijn bij Volkshuisvesting van mening dat de uitstraling van het pand een positief effect heeft op de buurt.”
Frank Lassche, Volkshuisvesting:
“Door de gecombineerde kracht van het programma en het gebouw is een monument uitgegroeid tot een icoon van het nieuwe imago van de wijk Klarendal. Het ontstaan van het programma en het gebouw vond plaats binnen een organisch proces wat garant staat voor een ontwikkeling van de wijk Klarendal waarvoor geldt: ‘een gedeelde ruimte waar het verleden maar geen geschiedenis wordt’.”

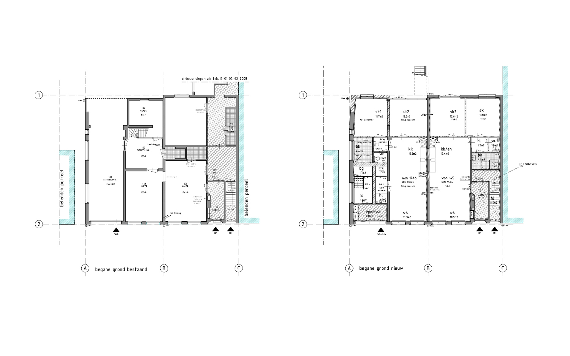
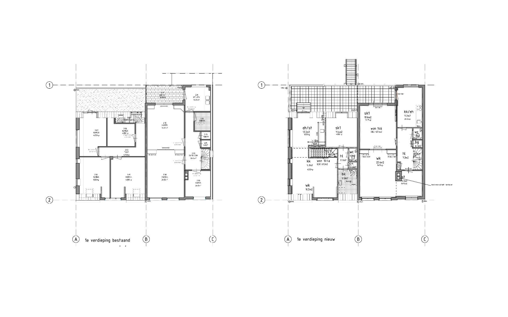
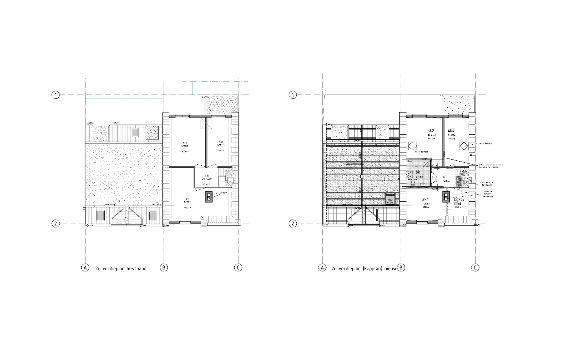
SLIMME BOUWSTEEN Een kleine opgave die groot begon: in de geleidelijke stadsvernieuwing van de wijk Klarendal vraagt Volkshuisvesting ons bureau om een visie en ontwerp te ontwikkelen voor een plek aan het spoor, tussen station en modekwartier. We starten met een locatielab en komen uit op een bescheiden plek met een openbare rol in de wijk. Daarvoor zou een pand gesloopt worden en het voormalig Kindertehuis herbestemd worden. De verwerving van het te slopen pand bleek niet haalbaar, waardoor het ontwerp voor nieuwbouw vooralsnog een papieren droom is. Daarmee staat een kostbare herbestemming en renovatie van het Kindertehuis op zich. De realisatie van vier appartementen vereist een ingrijpende aanpak van de achterzijde en van de entrees en stijgpunten. Maatwerk dat met gevoel voor de historische waarden tot een nieuw leven van dit kleinood leidt.
ORGANISCHE AANPAK Een niet-alledaags project vraagt om een niet-alledaagse aanpak. Een bestaand klein monument in de binnenstad transformeren naar goede en verhuurbare woningen is ontwerpmatig al een hele uitdaging. Maar met een beperkt bouwbudget in de hand vraagt dit om inventieve keuzes in het proces. Goed inzicht krijgen in de technische mogelijkheden van het bestaande pand is essentieel. In afstemming met onze opdrachtgever hebben wij bewust gekozen voor het vroegtijdig samenbrengen van verschillende benodigde disciplines. Met een verfijnd samenspel met het bouwbedrijf tot gevolg, waarbij met behulp van een iteratief proces en binnen het beschikbare budget goed wonen & historie een zijn geworden.
MET DE INBRENG VAN GEMOTIVEERDE EN CREATIEVE BOUWVAKMENSEN IS EEN VERBORGEN DETAIL MOGELIJK GEMAAKT.
Vanwege een zware geluidbelasting op de monumentale voorgevel is er inventief een oplossing gevonden voor het integreren van de noodzakelijke natuurlijke ventilatieroosters. Ruimte scheppend in de samenwerking en aanspreken op individuele ambitie en vakkundigheid heeft productontwikkeling binnen deze beperkte bouwopgave mogelijk gemaakt. Met een mooi verborgen detail als resultaat. En trotse mensen en gelukkige bewoners.
datum: 2011
fase: gerealiseerd
projectomschrijving: Transformeren van een monument in de binnenstad naar woningen voor de verhuurmarkt
projectadres: Arnhem, Sonsbeeksingel
opdrachtgever: Volkshuisvesting Arnhem
aannemer: Kreunen Bouw











