In het historische centrum van Amersfoort wordt al ruim 600 jaar ouderenzorg aangeboden op de locatie Davidshof van het Sint Pieters en Bloklands Gasthuis. Met de sluiting van het verzorgingshuis dreigde daar een einde aan te komen. Uit haalbaarheidsstudies naar herbestemming van het rijksmonument bleek dat de zorgfunctie kon worden behouden door herbestemming tot verpleeghuis voor somatiek en psychogeriatrie.

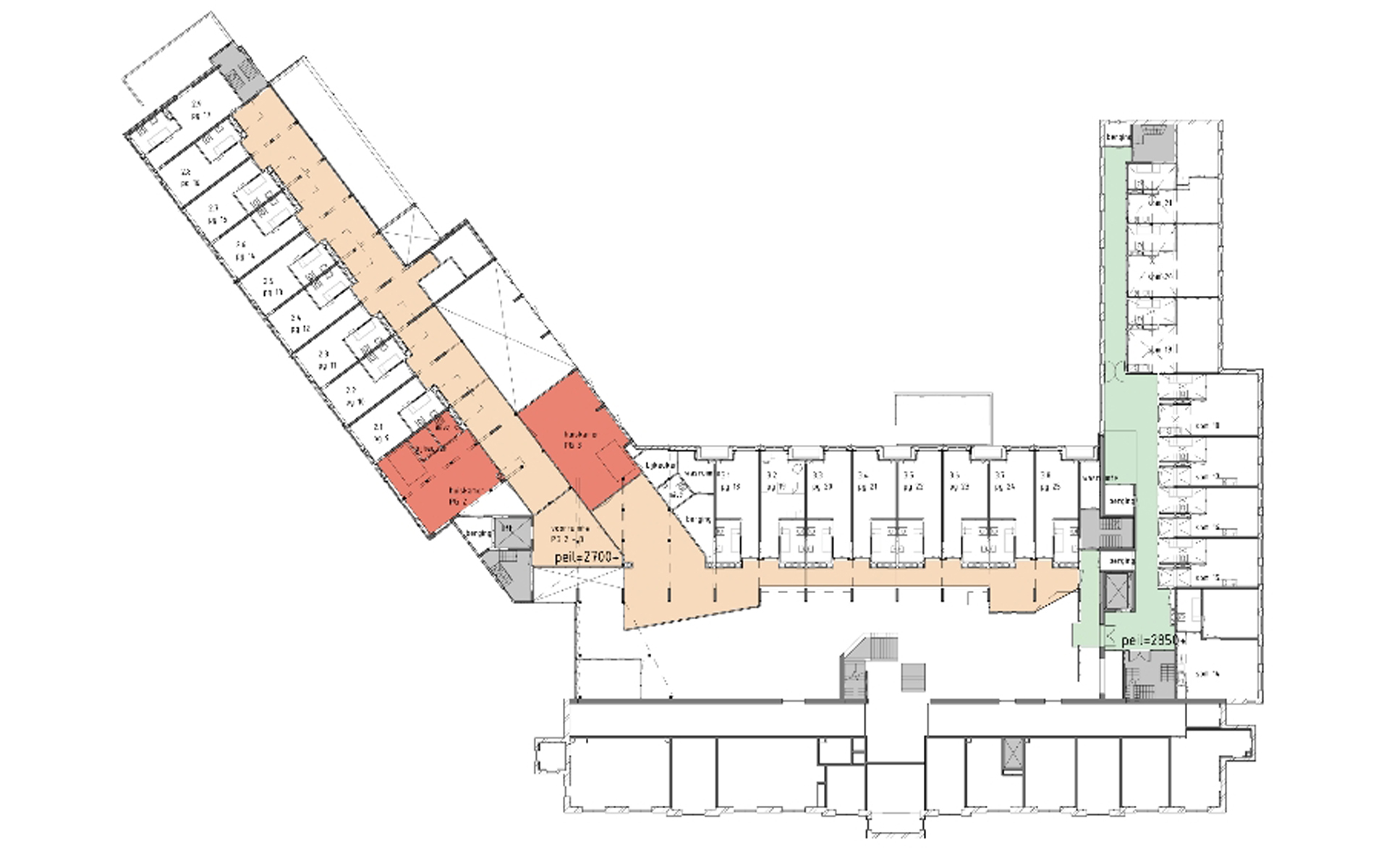
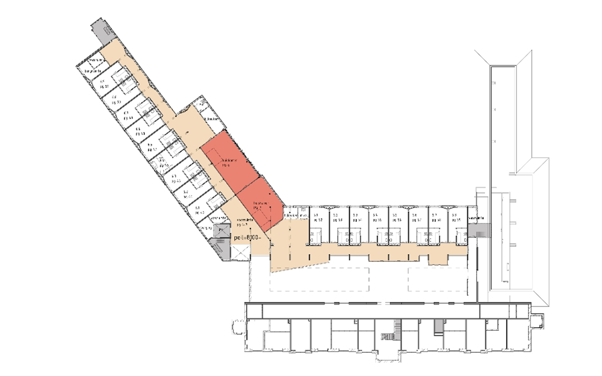
Het rijksmonument uit 1900 is in de loop de tijd verbouwd en uitgebreid. Rond 1950 werd aan de zuidoostelijke zijde een eerste vleugel bijgebouwd. Rond 1985 volgde een tweede vleugel aan de noordzijde, waarmee ook een atrium is ontstaan. In het nieuwe ontwerp zijn in het monumentale hoofdgebouw en de zuidvleugel marktconforme zorgappartementen gerealiseerd waar somatische zorg extramuraal wordt aangeboden. Zeven kleinschalige woongroepen voor psychogeriatrische zorg hebben een plek gekregen in de noordvleugel van het verpleeghuis.
Verbinding
Met zijn bijzondere ruimtelijke kwaliteit is het atrium het centrum van het gebouw geworden. Op deze plek komen alle gebouwdelen bij elkaar, wat zichtbaar is gemaakt door monument en nieuwbouw in een harmonieus contrast vorm te geven. Het restaurant verbindt het atrium met de tuin. Een nieuwe glazen kap maakt de lucht weer zichtbaar en draagt bij aan de beleving van het atrium als plein. De zon schijnt weer naar binnen.
Het atrium brengt ook de verschillende gebruikers van het verpleeghuis bij elkaar. Op de begane grond functioneert het atrium als plein met onder andere een kapsalon en een restaurant voor de bewoners van de zorgappartementen. Er worden regelmatig concerten en tentoonstellingen georganiseerd die ook voor de stadsbewoners toegankelijk zijn. Tegelijk zijn er galerijen aan het atrium die onderdeel zijn van de gesloten woongroepen. De galerijen staan in open contact met de openbaarheid van het atrium. Met nieuwe balkons zijn verblijfsplekken aan het atrium ontstaan. Het hoogteverschil bepaalt de scheidslijn – een natuurlijke grens van lucht. De dementerende bewoners kunnen zo deelgenoot zijn van alles wat in het atrium gebeurt.

Bewegingsvrijheid
Een slimme ruimtelijke organisatie van de zeven woongroepen optimaliseert de bewegingsvrijheid van de bewoners en biedt flexibiliteit in gebruik. De woongroepen kunnen individueel worden afgesloten, maar zijn ook per verdieping en als vleugel te schakelen en af te sluiten. Als de groepen zijn geschakeld ontstaat meer bewegingsvrijheid voor de bewoners en wordt een gecontroleerd dwalen over meerdere verdiepingen mogelijk. De schakelbaarheid van de groepen biedt organisatorische flexibiliteit voor de toekomst.
Helende omgeving
Het optimaliseren van de helende omgeving in de context van het bestaande gebouw stond centraal in het ontwerp. Daarom is veel aandacht uitgegaan naar daglichttoetreding, kleurgebruik, herkenbaarheid en zintuiglijke prikkeling. De verschillende karakters van gebouwdelen zijn gebruikt om herkenbaarheid en oriëntatie te versterken. Met kleur zijn accenten in het interieur aangebracht. Omdat er in vorm ruimtelijk al veel gebeurt, is gekozen voor een neurale, witte afwerking. Zo ontstaat ook ruimte voor toevoegingen in het dagelijks gebruik, waardoor de gebruikers eigenheid aan de ruimte kunnen toevoegen.
Ook de dynamiek van het gebruik is van invloed op de helende kwaliteit van de omgeving. Daarom is na de oplevering een gezamenlijk project gestart om ruimte en gebruik, gebouw en gebruikers van het verpleeghuis met elkaar te verbinden, zodat een levende gemeenschap in een helende omgeving kan ontstaan.
Themabijeenkomsten
Een BIM-model van het ontwerp was de basis voor de communicatie met de opdrachtgever, andere adviseurs en bouwende partijen. Het model bood partijen meer inzicht in het plan en de consequenties van verschillende keuzemogelijkheden.
Om binnen de planning te blijven is bij de technische uitwerking van het plan een alternatief bedacht voor de gebruikelijke, agendagestuurde bouwvergaderingen. Het project is opgedeeld in verschillende onderzoeksthema’s. In themabijeenkomsten is met de betrokken partijen gewerkt aan een integrale engineering van de verschillende onderdelen. Zo werden afwegingen op het juiste moment gedeeld en werden de beslismomenten eenduidig. De integrale samenwerking van de partijen leidde tot een versnelling in het proces en resulteerde een consistente aanpak in alle fases van het bouwproject.
datum: 2012
fase: gerealiseerd
projectadres: Amersfoort, Davidshof
opdrachtgever: Coresta en Stichting Sint Pieters en Bloklands Gasthuis
aannemer: Van Wijnen Harderwijk B.V.
adviseur constructie: Goudstikker – De Vries
adviseur installatie: VH Engineering
fotografie: Erik Zonneveld, Valentijn Kerstens
























