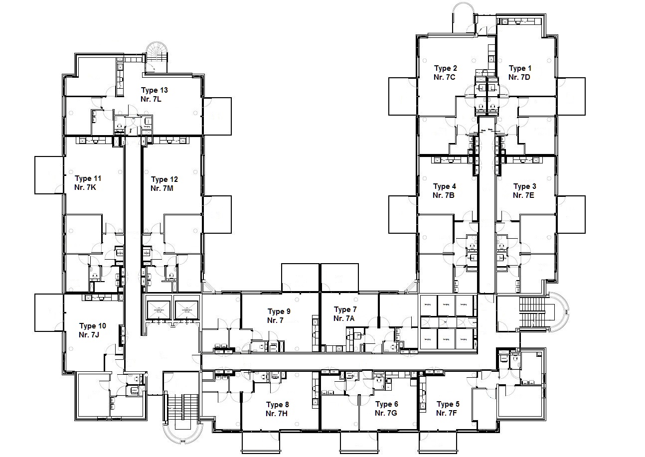
De transformatie van het voormalig kantoorgebouw van de douane in Roosendaal is een succes! Bij de feestelijke opening al geheel verhuurd, is het meteen een boost voor de omgeving. De betonkolos aan de rand van de binnenstad is door Coresta herontwikkeld tot appartementengebouw De Douanier. Het ontwerp is van de hand van Studio Kaart.
Ons bureau kreeg opdracht voor de technische uitwerking en voor het ontwerp van planwijzigingen op begane grond. De begane grond huisvest een mix van kantoor- en cursusruimten voor SDW, horeca en appartementen. Een deel van de appartementen is bestemd voor begeleid wonen. Deze bewoners worden door SDW begeleid en de horeca biedt werkgelegenheid voor deze doelgroep. Zo draagt het complex in vele opzichten bij aan de vernieuwing van het gebied rond De Kade. De transformatie werd door BVR Bouw uitgevoerd.
datum: 2017
fase: opgeleverd
projectomschrijving: transformatie douanekantoor
projectadres: Kadeplein, Roosendaal
opdrachtgever: Coresta
ontwerp: Studio Kaart
technische uitwerking: maak>architectuur
uitvoering: BVR-groep














