Appartementen Hollands Chalet, Odijk

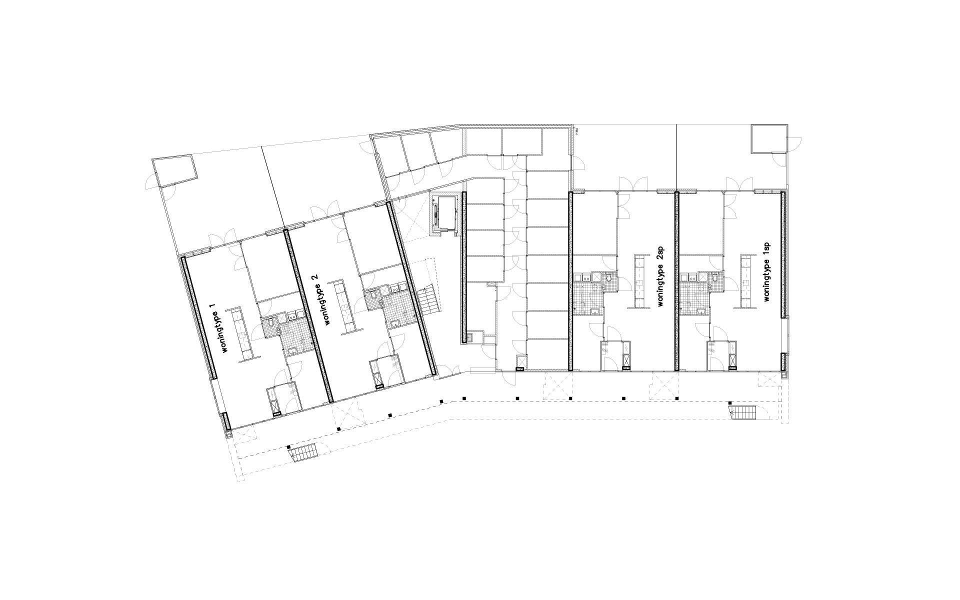
WOONGALERIJ ONDER DE PET Portaal Utrecht vraagt om twintig appartementen voor de sociale huur op een zeer smal kavel. Ingeklemd tussen straat en eengezinshuizen dreigt de benodigde stapeling een loopje te nemen met de privacy voor bewoners van deze huizen. De straat is juist, als wijkontsluiting, een anonieme ruimte. Twee ontwerpkeuzes zijn cruciaal voor de woonkwaliteit en verhuurbaarheid:


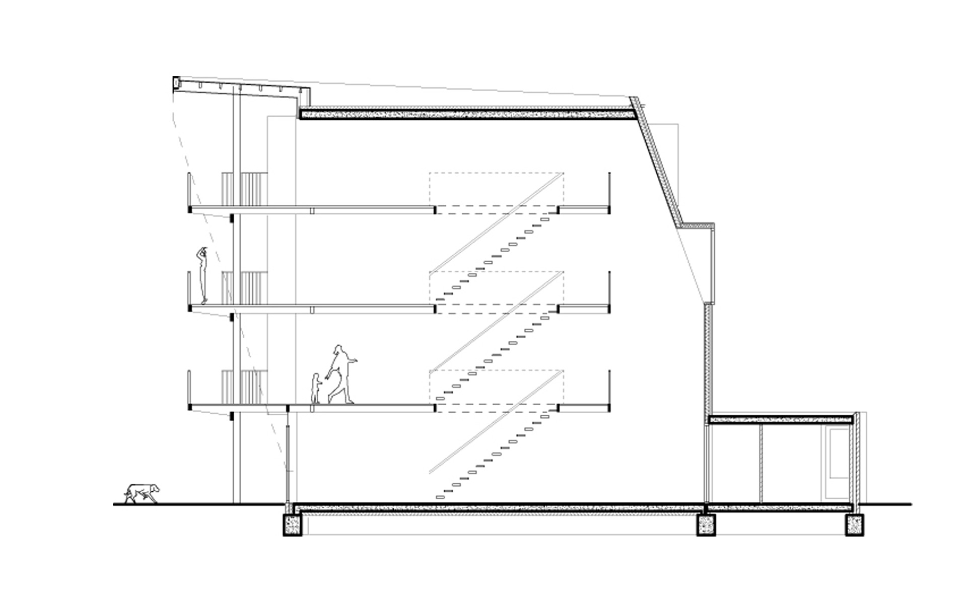
Typologie: eenzijdig op een woongalerij gerichte appartementen. De privacy van omwonenden is gegarandeerd. Slechts smalle slaapkamerramen kijken uit op de tuinen. De woongalerij zorgt voor collectieve oriëntatie op de straatruimte, die daardoor zijn anonimiteit verliest.

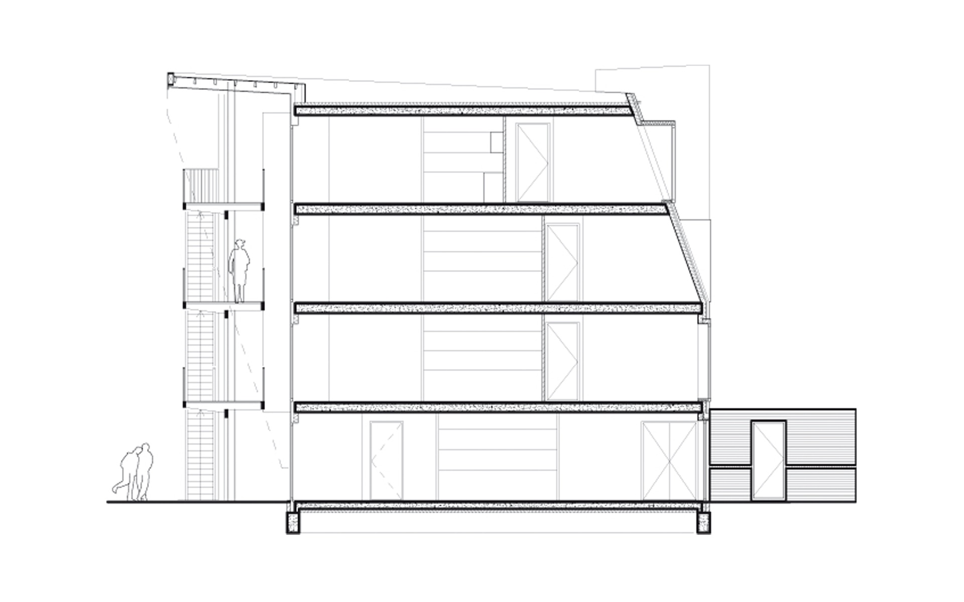
De kap: een galerijflat met kap! Een eenzijdig opgetilde kap. Expressie van de oriëntatie op de straat, tegelijk beschutting en expressie van collectiviteit voor de woongalerijen. Groene kleuren, onbehandeld houten galerijen en glazen borstweringen zorgen voor een zachte en chique uitstraling aan de straat, die geen mens met sociale woningbouw associeert.

ONDERHOUDSVRIENDELIJK De goede uitstraling komt vooral tot uiting door de zorgvuldige keuze en uitwerking van de verschillende onderdelen. Een kwaliteit die moet voldoen aan de voorwaarden voor een onderhoudsvriendelijk en bouwtechnisch kloppend gebouw. Eenvoud van het detail.

Aan de gesloten kant is bijzondere aandacht geschonken aan de opvang en afvoer van het hemelwater. Keuzes op maat voor houtsoorten en detaillering hebben een voorbeeldig stukje timmerwerk opgeleverd. Lof voor alle betrokkenen, waar wij met plezier op terug kijken.

Woongebouw Hollands Chalet, Odijk
datum: 2007
fase: gerealiseerd
projectadres: Odijk, Singel
opdrachtgever: Portaal Utrecht
fotografie: Petra Appelhof, MeRy Fotografie